Christiane Fischer Architektin AKNW
Startseite
Projekte
Wohnhäuser
Öffentliche Gebäude
Rathaus Niederkassel
FGH Oberdollendorf
„Haus der Bildung“ in Rheinbach
Sportgebäude
Bürogebäude
Profil
Links
Kontakt
Impressum
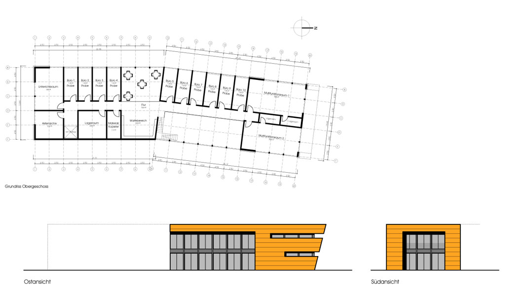
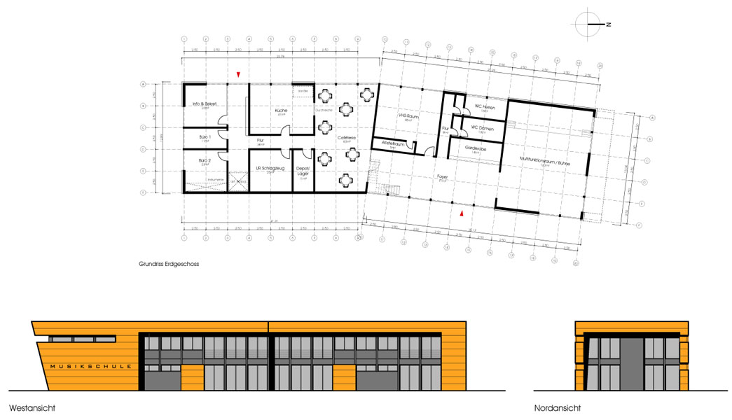
Entwurf "Haus der Bildung" in Rheinbach